Products
当前位置:赢博yingbo(中国)>赢博官方网站 > 智能立体车库系列
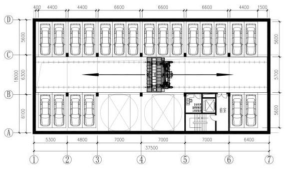
运行原理 采用巷道堆垛机将搬运机器上的车辆水平垂直移动到存车位,通过存取机构存取车辆。出入口通常设置垂直升降机,这种车库自动化程度很高,且全部封闭式建造,车辆安全性好。该车库类型主要适用于大型密集式存车
400-822-8286
13707400505
运行原理
采用巷道堆垛机将搬运机器上的车辆水平垂直移动到存车位,通过存取机构存取车辆。出入口通常设置垂直升降机,这种车库自动化程度很高,且全部封闭式建造,车辆安全性好。该车库类型主要适用于大型密集式存车。


COPYRIGHT © hnyuanrui.com ALL RIGHTS RESERVED. 赢博官方网站 版权所有
湘ICP备16017744号